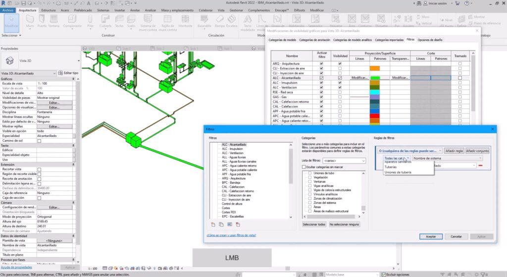
Modelo de coordinación – control de visualización

Descubre cómo controlar la visualización y la representación de elementos en el modelo de coordinación de Revit para mejorar la comunicación y la comprensión del proyecto.

Mira disfruta y aprende BIM con el siguiente video

!Regístrate en la
membresía FREE hoy!

Obtén 3 días
GRATIS

NO PEDIMOS TARJETAS